 
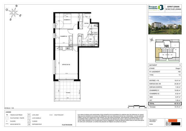
            Surface séjour : 26.74 m²
Cuisine : SANS
Type chauffage : Collectif
Exposition : Est
En attente du nouveau DPE
Nichée entre lac et montagne, Sciez est une commune dynamique de Haute-Savoie qui séduit de plus en plus d’acquéreurs, d’investisseurs et de locataires. Située sur la rive sud du lac Léman, entre Thonon-les-Bains et Genève, elle bénéficie d’un cadre de vie privilégié, d’un environnement naturel remarquable et d’une attractivité immobilière croissante.
Dans cet article, nous vous proposons un tour d’horizon complet de l’immobilier à Sciez : ses atouts, les types de biens disponibles, les tendances du marché, les prix, les quartiers recherchés, et nos conseils pour réussir votre projet dans cette commune prisée du Chablais.
Sciez séduit par son cadre de vie paisible, sa proximité avec le lac Léman, ses infrastructures modernes et sa richesse naturelle. La commune offre un savant équilibre entre vie rurale, accès aux services, et facilité de déplacement. Elle est appréciée autant des familles que des actifs frontaliers travaillant à Genève, à seulement 30 kilomètres.
Le port de Sciez, ses plages, ses sentiers forestiers et ses espaces naturels protégés comme le Domaine de Guidou en font un lieu de vie idéal pour ceux qui recherchent calme et qualité de vie tout en restant proches des grands centres urbains.
Le marché immobilier à Sciez est relativement diversifié, et répond à une large palette de besoins et de budgets. On y retrouve notamment :
Des maisons individuelles avec jardin, souvent situées dans des quartiers résidentiels calmes.
Des appartements modernes dans de petites copropriétés, idéals pour les jeunes couples ou les primo-accédants.
Des terrains constructibles, parfois avec vue sur le lac ou les montagnes.
Quelques biens d’exception : villas contemporaines, maisons de caractère, ou propriétés avec piscine.
Des logements en location adaptés aux familles, étudiants ou actifs frontaliers.
Ce dynamisme permet à la commune de répondre aussi bien aux attentes des résidents permanents qu’à celles des investisseurs à la recherche d’un placement locatif dans une zone en développement.
Les prix de l’immobilier à Sciez ont connu une hausse régulière ces dernières années, portée par la demande soutenue, la rareté de certains biens, et la qualité de vie locale. En moyenne :
Le prix au m² pour une maison oscille entre 4 000 € et 5 500 €, selon le secteur, l’état du bien et ses prestations.
Le prix au m² pour un appartement se situe entre 3 800 € et 4 800 €, avec des variations selon l’ancienneté et la localisation.
Les terrains constructibles peuvent atteindre entre 300 € et 600 € le m², en fonction de leur exposition, vue et viabilisation.
Les biens proches du lac, ou bénéficiant d’une belle vue, sont évidemment plus recherchés et donc plus chers. À l’inverse, les secteurs en retrait ou nécessitant des travaux offrent des opportunités à saisir pour les budgets plus restreints.
La commune de Sciez est composée de plusieurs hameaux et quartiers aux ambiances variées. Parmi les plus appréciés :
Le Bourg : cœur historique du village, à proximité immédiate des commerces, écoles et services. Très demandé pour sa praticité.
Le Port : idéalement situé au bord du lac Léman, parfait pour les amateurs de nautisme et les résidences secondaires.
Marinel, Chez Les Vernaz, Les Crêts : des zones résidentielles calmes, en retrait, parfaites pour les familles à la recherche d’un environnement serein.
Chevilly et Jussy : hameaux en développement, qui offrent une belle qualité de vie et des opportunités foncières.
Chaque quartier a ses atouts spécifiques. Un agent immobilier à Sciez saura vous orienter vers les zones les plus adaptées à votre projet.
Avec la tension locative observée sur le bassin lémanique, investir dans l’immobilier locatif à Sciez peut être une excellente décision patrimoniale. La demande est portée par :
Les frontaliers travaillant à Genève ou Lausanne.
Les familles locales recherchant des maisons ou appartements à louer.
Les touristes et vacanciers, intéressés par les courts séjours au bord du lac.
En optant pour une gestion locative professionnelle, vous pouvez déléguer entièrement la mise en location, la sélection des locataires, les démarches administratives et le suivi du bien, tout en sécurisant vos revenus.
Le marché immobilier à Sciez est en constante évolution. Pour vendre, acheter ou louer dans les meilleures conditions, il est fortement recommandé de faire appel à un professionnel local. Une agence immobilière implantée dans la commune vous apporte :
Une connaissance fine du marché local et de ses spécificités.
Une estimation précise et réaliste de votre bien.
Une diffusion optimale de votre annonce.
Un accompagnement sur mesure, humain et transparent.
Installée dans le Chablais depuis plus de 10 ans, Poirier Immobilier est votre agence immobilière à Sciez pour tous vos projets immobiliers : achat, vente, location, gestion locative.
Notre équipe connaît parfaitement les spécificités du marché immobilier local, les quartiers, les prix, et les attentes des acheteurs ou des locataires. Grâce à notre expertise et notre approche personnalisée, nous vous accompagnons avec sérieux, transparence et efficacité.
Vous avez un projet immobilier à Sciez ou dans les environs ? Contactez notre agence de Sciez pour en discuter. Ensemble, faisons avancer votre projet.
Appartement 3 pièces à la vente
Appartement 3 pièces à la vente
Appartement 3 pièces à la vente